Algemeen
Prijs
€ 300.000 k.k.
Bouwtype
bestaande bouw
Woonoppervlakte
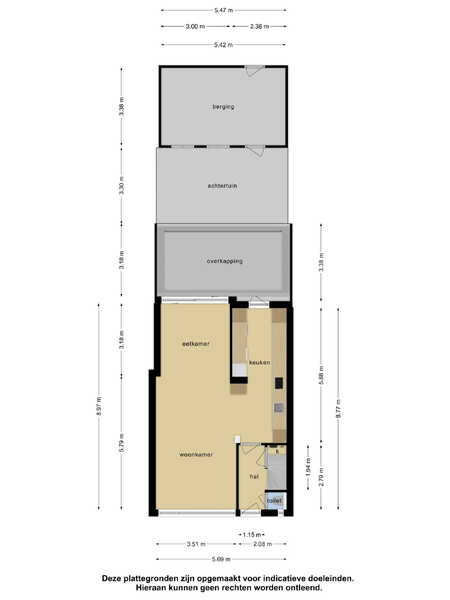
83 m2
Perceeloppervlakte
120 m2
Aantal kamers
4
Aantal slaapkamers
3
Aantal badkamers
1
Omschrijving
Kenmerken
Adres
Zonnedauwstraat 26
5143 CM WAALWIJK
5143 CM WAALWIJK
Prijs
Soort
Prijs
€ 300.000 k.k.
Aanvaarding
in overleg
Aangeboden sinds
22 Februari 2024 
Details
Type object
woonhuis
Soort object
eengezinswoning
Bouwtype
bestaande bouw
Bouwjaar
1960
Woonoppervlakte
83 m2
Perceeloppervlakte
120 m2
Gebouwgebonden buitenruimte
19 m2
Externe bergruimte
19 m2
Inhoud
305 m3
Open portiek
nee
In aanbouw
nee
Indeling
Aantal kamers
4
Aantal slaapkamers
3
Aantal badkamers
1
Typewoonkamer
woonkamer, doorzonkamer
Keukensoort
inbouwapparatuur, half open keuken
Tuin
Aanwezig?
ja
Tuin
achtertuin, voortuin
Oppervlakte
42 m2
Diepte
6,00 m
Breedte
7,00 m
Ligging
west
Bereikbaar via achterom?
ja
Garage
Aanwezig?
nee
Bergruimte
Energielabel
Aanwezig?
ja
Klasse
C
Downloads
Uw makelaar
Ad Krijnen
Geïnteresseerd in deze woning? Vul dit formulier in voor een bezichtiging van deze woning of voor meer informatie. Dan nemen wij zo snel mogelijk contact met u op.











