Welkom bij dit schitterende 4-kamer appartement aan de Cheviotstraat 6, gelegen op de eerste verdieping van een kleinschalig en modern appartementencomplex. Dit appartement biedt een gevoel van ruimte met een woonoppervlakte van 126m2 en buitenruimtes van in totaal 33m2. Met zijn hedendaagse afwerkingen en een overvloed aan natuurlijk licht is dit een heerlijke plek om te wonen.
Levendige Buurt
Gelegen in de gezellige wijk Hasselt/Goirke in Tilburg, biedt dit appartement een uitstekende locatie. Kinderopvang en basisscholen zijn gemakkelijk te voet bereikbaar. In de directe omgeving vindt u een bakker, visspecialist en diverse lokale winkels. Voor de grotere boodschappen zijn er supermarkten op korte afstand.
Centraal Gelegen
Het complex bevindt zich zeer centraal binnen de ringbanen van Tilburg. Via Ringbaan Noord heeft u uitstekende verbindingen naar de A261 richting Waalwijk, Breda, Rotterdam en ’s-Hertogenbosch. Daarnaast ligt het centrum en het Centraal Station op fietsafstand, wat de locatie nog aantrekkelijker maakt.
Gezamenlijke Entree
Bij de gezamenlijke entree vindt u de brievenbussen, een lift en het trappenhuis. Tevens heeft u toegang tot de parkeergarage met parkeerplaatsen en bergingen.
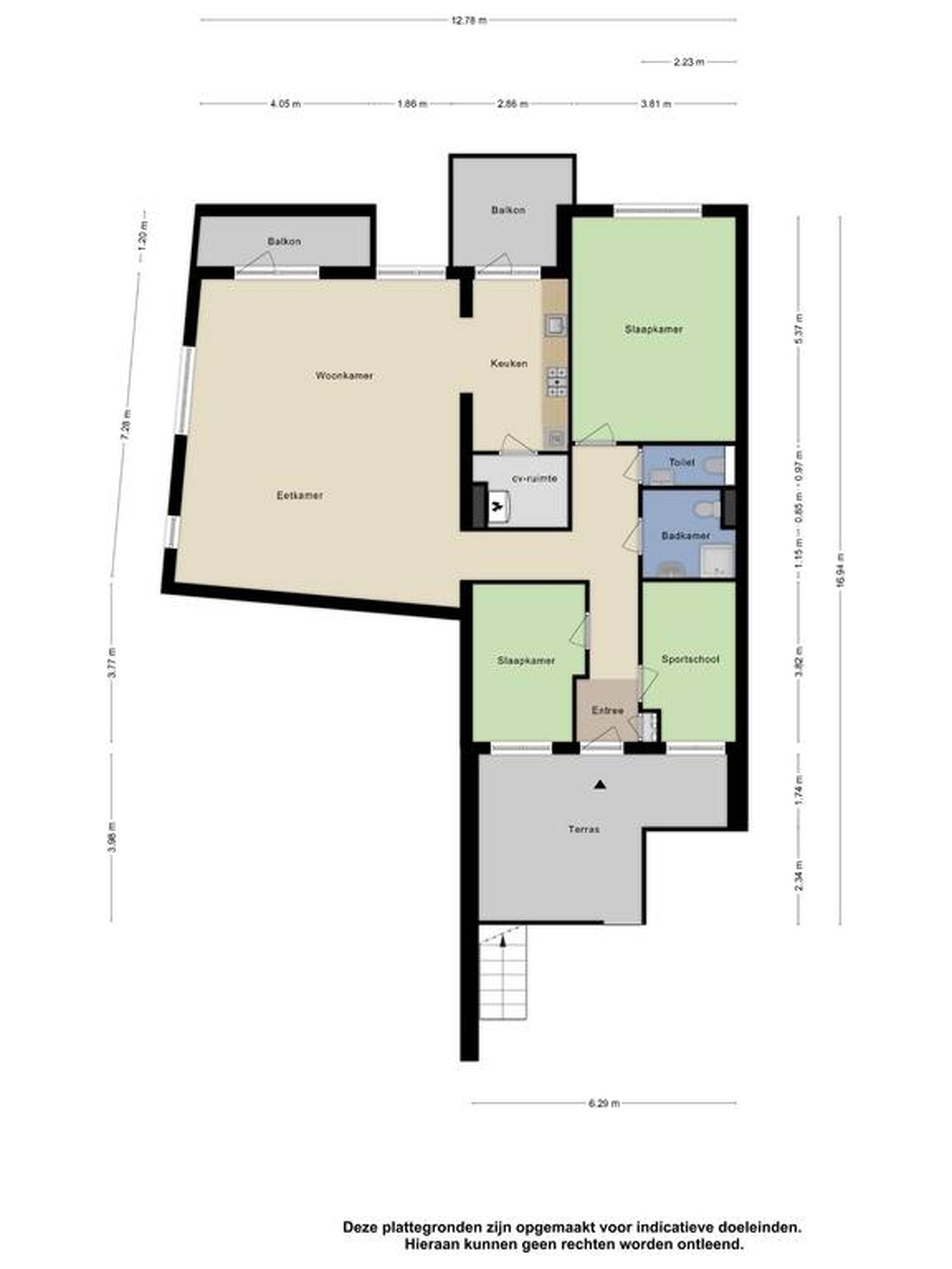
Indeling
Bij binnenkomst komt u in de hal met ruimte voor een garderobe en toegang tot de meterkast. De ruime en speelse woonkamer heeft toegang tot twee balkons en is voorzien van strakke muren en een houten vloer.
De half-open keuken is compleet uitgerust met een gaskookplaat, afzuigkap, inbouwkoelkast, vaatwasser en combi-oven. Vanuit de keuken heeft u toegang tot de praktische berg-, was-, en ketelruimte.
Naast de inpandige berging leidt de doorgang naar drie slaapkamers, de toiletruimte en de badkamer.
Badkamer en Extra Ruimtes
In de hal bevindt zich de volledig betegelde badkamer, voorzien van een douche, wastafel en toilet.
De wasruimte biedt handige bergruimte en bevat de mechanische ventilatie, de opstelling van de C.V.-ketel en aansluitingen voor wasapparatuur.
Extra Voorzieningen
Dit appartement is uitgerust met rolluiken, wat zorgt voor extra comfort en energie-efficiëntie.
Parkeerplaats en Berging
U beschikt over een eigen parkeerplaats en een berging op de begane grond van het complex, toegankelijk via een elektrische garagedeur.
Algemene Kenmerken:
-Zonnige balkons;
-Eigen parkeerplaats in de parkeergarage;
-Ramen met rolluiken;
-Energielabel A+;
-Aparte wasruimte;
-Ruime berging;
-VvE-kosten €185,00 per maand.
Bent u op zoek naar een modern, licht en ruim appartement op een centrale locatie in Tilburg? Dan is dit 4-kamer appartement aan de Cheviotstraat 6 zeker een bezichtiging waard!