Algemeen
Prijs
€ 200.000 k.k.
Bouwtype
bestaande bouw
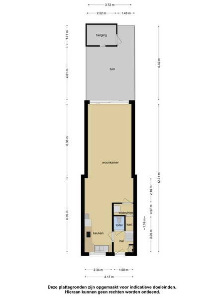
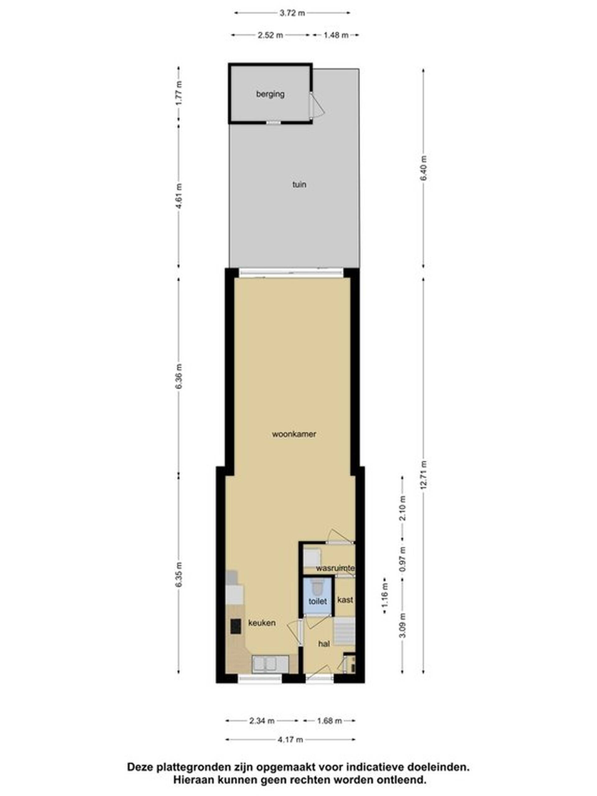
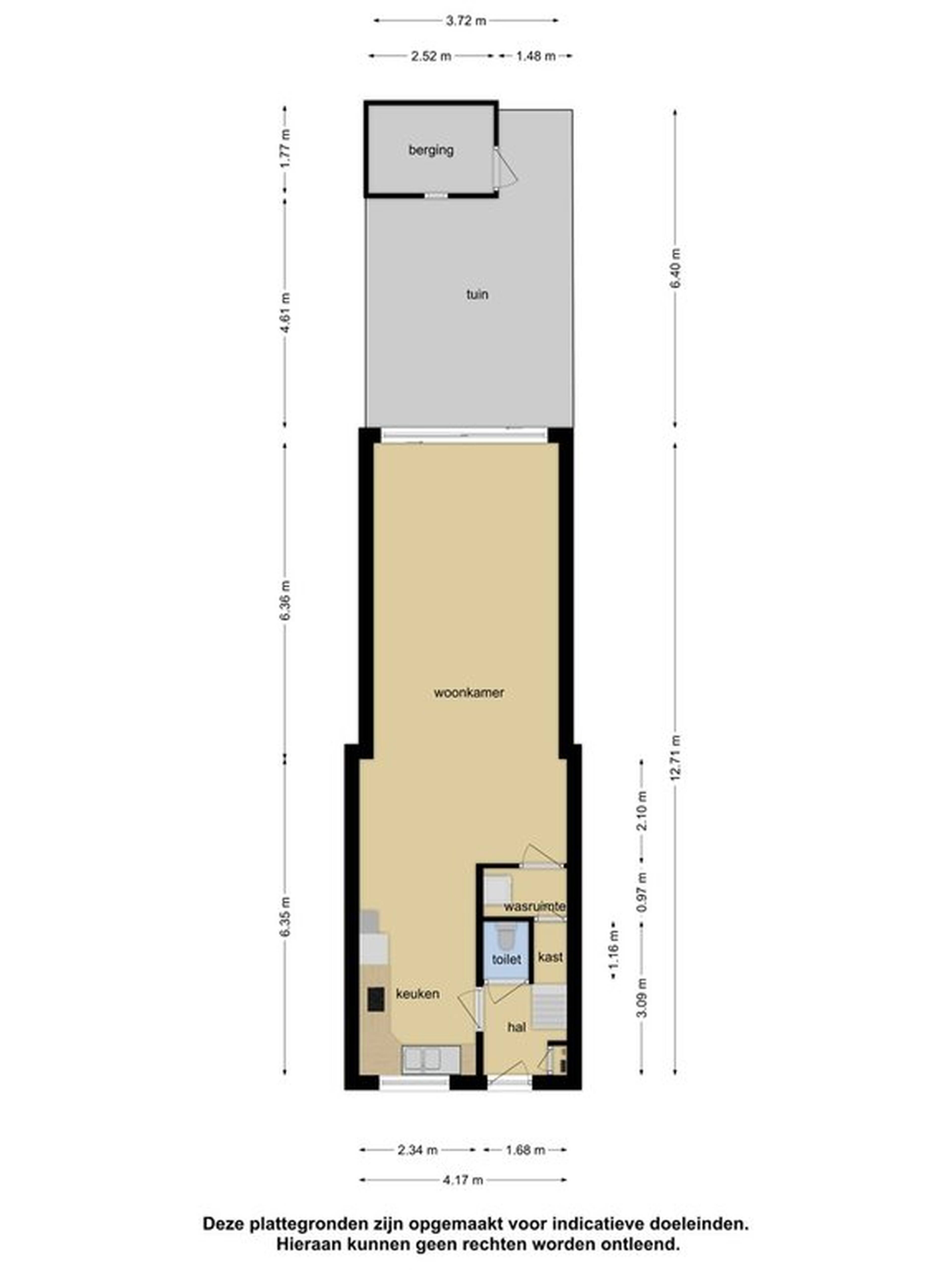
Woonoppervlakte
87 m2
Perceeloppervlakte
87 m2
Aantal kamers
4
Aantal slaapkamers
3
Aantal badkamers
1
Omschrijving
Kenmerken
Adres
Jozef Israelsstraat 45
5025 NP TILBURG
5025 NP TILBURG
Prijs
Soort
vraagprijs
Prijs
€ 200.000 k.k.
Aanvaarding
in overleg
Aangeboden sinds
8 Februari 2022
Details
Type object
woonhuis
Soort object
eengezinswoning
Bouwtype
bestaande bouw
Bouwjaar
1926
Woonoppervlakte
87 m2
Perceeloppervlakte
87 m2
Gebouwgebonden buitenruimte
5 m2
Inhoud
296 m3
Open portiek
nee
In aanbouw
nee
Indeling
Aantal kamers
4
Aantal slaapkamers
3
Aantal badkamers
1
Typewoonkamer
doorzonkamer
Keukensoort
open keuken
Tuin
Aanwezig?
ja
Tot. oppervlakte
17 m2
Tuin
achtertuin
Oppervlakte
17 m2
Diepte
4,60 m
Breedte
3,70 m
Bereikbaar via achterom?
ja
Garage
Aanwezig?
nee
Bergruimte
Schuur/berging?
aangebouwd hout
Energielabel
Aanwezig?
nee
Uw makelaar
Karin Wolsleger
Geïnteresseerd in deze woning? Vul dit formulier in voor een bezichtiging van deze woning of voor meer informatie. Dan nemen wij zo snel mogelijk contact met u op.




