Algemeen
Prijs
€ 495.000 k.k.
Bouwtype
bestaande bouw
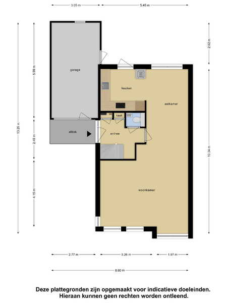
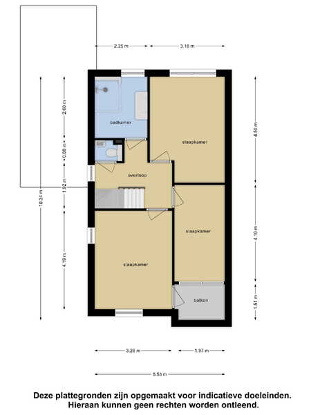
Woonoppervlakte
145 m2
Perceeloppervlakte
259 m2
Aantal kamers
6
Aantal slaapkamers
4
Aantal badkamers
1
Omschrijving
Kenmerken
Adres
Wielewaallaan 14
4005 EZ TIEL
4005 EZ TIEL
Prijs
Soort
Prijs
€ 495.000 k.k.
Aanvaarding
per 2024-09-01
Aangeboden sinds
14 Mei 2024
Details
Type object
woonhuis
Soort object
eengezinswoning
Bouwtype
bestaande bouw
Bouwjaar
1998
Woonoppervlakte
145 m2
Perceeloppervlakte
259 m2
Gebouwgebonden buitenruimte
8 m2
Inhoud
575 m3
Open portiek
nee
In aanbouw
nee
Ligging
aan rustige weg, in woonwijk, vrij uitzicht
Soort verwarming
cv ketel
Warmwaterinstallatie
cv ketel
Dakmateriaal
pannen
Voorzieningen
mechanische ventilatie, rolluiken, buitenzonwering, glasvezel kabel, zonnepanelen, balansventilatie
Indeling
Aantal kamers
6
Aantal slaapkamers
4
Aantal badkamers
1
Keukensoort
half open keuken
Tuin
Aanwezig?
ja
Tuin
achtertuin, voortuin
Oppervlakte
80 m2
Diepte
10,00 m
Breedte
8,00 m
Ligging
zuid
Bereikbaar via achterom?
nee
Garage
Aanwezig?
ja
Oppervlakte
18 m2
Bergruimte
Energielabel
Aanwezig?
ja
Klasse
A
Downloads
Uw makelaar
Robert Slenters
Geïnteresseerd in deze woning? Vul dit formulier in voor een bezichtiging van deze woning of voor meer informatie. Dan nemen wij zo snel mogelijk contact met u op.







