Algemeen
Prijs
€ 350.000 k.k.
Bouwtype
bestaande bouw
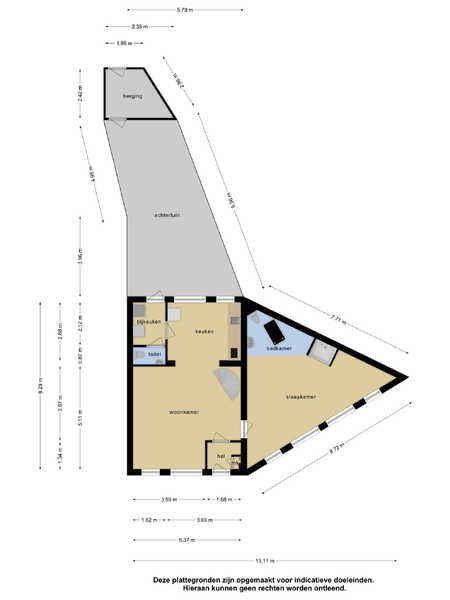
Woonoppervlakte
154 m2
Perceeloppervlakte
140 m2
Aantal kamers
7
Aantal slaapkamers
6
Aantal badkamers
1
Omschrijving
Kenmerken
Adres
Lievekenshoek 14
5171 CS KAATSHEUVEL
5171 CS KAATSHEUVEL
Prijs
Soort
Prijs
€ 350.000 k.k.
Aanvaarding
in overleg
Aangeboden sinds
21 November 2023 
Details
Type object
woonhuis
Soort object
eengezinswoning
Bouwtype
bestaande bouw
Bouwjaar
1980
Woonoppervlakte
154 m2
Perceeloppervlakte
140 m2
Externe bergruimte
7 m2
Inhoud
540 m3
Open portiek
nee
In aanbouw
nee
Soort verwarming
cv ketel
Warmwaterinstallatie
cv ketel
Dakmateriaal
pannen
Indeling
Aantal kamers
7
Aantal slaapkamers
6
Aantal badkamers
1
Typewoonkamer
woonkamer, doorzonkamer
Keukensoort
open keuken, woonkeuken, inbouwapparatuur
Tuin
Aanwezig?
ja
Tuin
achtertuin
Oppervlakte
75 m2
Diepte
15,00 m
Breedte
5,00 m
Ligging
west
Bereikbaar via achterom?
ja
Garage
Aanwezig?
nee
Bergruimte
Schuur/berging?
vrijstaand steen
Energielabel
Aanwezig?
ja
Klasse
B
Downloads
Uw makelaar
Ad Krijnen
Geïnteresseerd in deze woning? Vul dit formulier in voor een bezichtiging van deze woning of voor meer informatie. Dan nemen wij zo snel mogelijk contact met u op.











