Algemeen
Prijs
€ 300.000 k.k.
Bouwtype
bestaande bouw
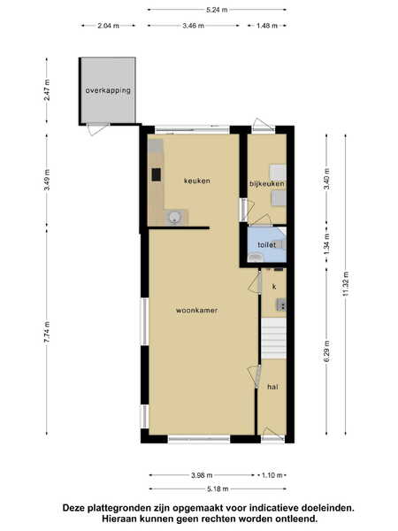
Woonoppervlakte
108 m2
Perceeloppervlakte
235 m2
Aantal kamers
4
Aantal slaapkamers
3
Omschrijving
Kenmerken
Adres
Antoniusstraat 56
5171 DC KAATSHEUVEL
5171 DC KAATSHEUVEL
Prijs
Soort
Prijs
€ 300.000 k.k.
Aanvaarding
in overleg
Aangeboden sinds
28 Juni 2023 
Details
Type object
woonhuis
Soort object
eengezinswoning
Bouwtype
bestaande bouw
Bouwjaar
1955
Woonoppervlakte
108 m2
Perceeloppervlakte
235 m2
Externe bergruimte
22 m2
Inhoud
363 m3
Open portiek
nee
In aanbouw
nee
Indeling
Aantal kamers
4
Aantal slaapkamers
3
Keukensoort
open keuken, woonkeuken, inbouwapparatuur
Tuin
Aanwezig?
ja
Tuin
achtertuin, voortuin, zijtuin
Bereikbaar via achterom?
nee
Garage
Aanwezig?
nee
Bergruimte
Schuur/berging?
vrijstaand hout
Energielabel
Aanwezig?
ja
Klasse
E
Downloads
Uw makelaar
Ad Krijnen
Geïnteresseerd in deze woning? Vul dit formulier in voor een bezichtiging van deze woning of voor meer informatie. Dan nemen wij zo snel mogelijk contact met u op.













