Algemeen
Prijs
€ 225.000 k.k.
Bouwtype
bestaande bouw
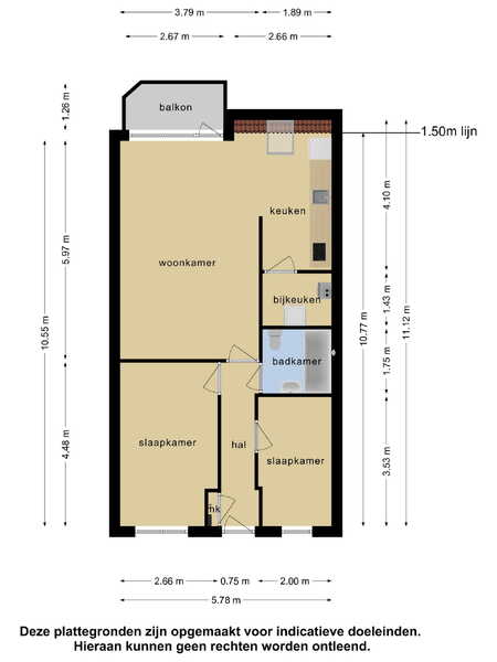
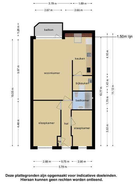
Woonoppervlakte
62 m2
Aantal kamers
3
Aantal slaapkamers
2
Omschrijving
Kenmerken
Adres
Alm 40
5172 CW KAATSHEUVEL
5172 CW KAATSHEUVEL
Prijs
Soort
Prijs
€ 225.000 k.k.
Aanvaarding
in overleg
Aangeboden sinds
7 Maart 2023 
Details
Type object
appartement/galerijflat
Bouwtype
bestaande bouw
Bouwjaar
1988
Woonoppervlakte
62 m2
Gebouwgebonden buitenruimte
4 m2
Inhoud
194 m3
Open portiek
nee
In aanbouw
nee
Indeling
Aantal kamers
3
Aantal slaapkamers
2
Typewoonkamer
woonkamer
Tuin
Aanwezig?
nee
Garage
Aanwezig?
nee
Bergruimte
VVE
Ingeschreven in Kamer van Koophandel
ja
Actief
ja
Reservefonds
ja
Onderhoudsplan
ja
Opstalverzekering
ja
Periodieke bijdrage
€ 127
Energielabel
Aanwezig?
ja
Klasse
C
Downloads
Uw makelaar
Ad Krijnen
Geïnteresseerd in deze woning? Vul dit formulier in voor een bezichtiging van deze woning of voor meer informatie. Dan nemen wij zo snel mogelijk contact met u op.



